80 cm-es zuhanykabin - az ilyen rendszerek főbb jellemzői és
Ha figyelembe vesszük az eladott standok lehetőségét, akkor könnyű látni, hogy a 80-80-as zuhanyzó nagyon kedvelt a vásárlók körében, mivel ez a lehetőség olyan apartmanok számára alkalmas, ahol a fürdőszoba kicsi, és a helytakarékosság kérdése alapvető fontosságú. De ha szükséges, kiválaszthatja az egyes helyzetekhez képest kissé eltérő paraméterekkel rendelkező terveket, akkor megvizsgáljuk, hogy mely megoldások a legmegfelelőbbek bizonyos feltételek mellett.

A fő különbségek a fülkében
Még a rendszer azonos méretével is jelentősen változhat, ezért fontos figyelembe venni azokat a kritériumokat, amelyek közvetlenül érintik mind a megjelenést, mind a működés jellemzőit:
| Építési mód | Több lehetőség is létezik: zárt, nyitott és beépített, részletesebben az alábbi rendszerek mindegyikére nézünk, mivel ez a tényező az egyik legjelentősebb. |
| alak | Számos alapvető megoldás létezik: klasszikus négyszögletes kabinok, lekerekített saroklehetőségek, amelyek szűk helyekre, ötszögű szerkezetekre és még középen telepített körrendszerekre is alkalmasak. Még mindig kiválaszthatja a négyszögletes termékeket, ideálisak azokban az esetekben, amikor a hely szélessége korlátozott, de nem a hossz. |
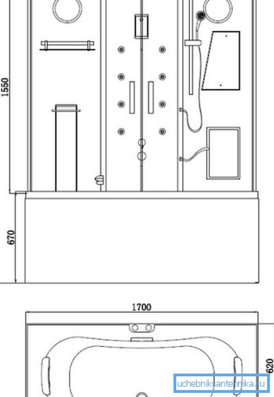
| Feature set | A rendszert csak zuhannyal lehet megvásárolni, és hidromasszázs, aromaterápiás és még gőzfürdővel is választhat. Természetesen az ár nagyban változik, ezért nem szabad olyan termékeket vásárolnia, amelyek olyan jellemzőkkel rendelkeznek, amelyeket valószínűleg nem használ a művelet során. |
| minőség | A néhány évvel ezelőtt nagyon népszerű költségvetési módosítások manapság kevésbé népszerűek, hiszen a felhasználók meg voltak győződve arról, hogy az alacsony költségek leginkább alacsony megbízhatóságot jelentenek, az ilyen struktúrák folyamatosan lebomlanak. Jobb figyelmet fordítani legalább a középső szegmensre, és ha az alapok lehetővé teszik, akkor jobb, ha egy prémium osztályt kapunk. |
Tipp Ha többet szeretne megtudni egy adott modellről, javasoljuk, hogy olvassa el az interneten található véleményeket, amelyek nagyon sok a speciális erőforrásokról. Így megtudhatja, hogyan tervezik az ügyfelek munkáját.

Építési módok
Amint a fentiekben megjegyeztük, még ha ugyanaz a rendszer mérete is jelentősen változik, fontolja meg a három fő lehetőséget, amelyekről tudnia kell egy adott megoldás kiválasztásakor.
Zuhanykabinok
Gyakran nyílt zuhanyzóknak hívják, a legfontosabb jellemzők a következő tényezők:

- A zuhanyfülke egyszerű felszerelése saját kezével - a munka elvégzésére vonatkozó utasítások olyan egyszerűek, hogy szinte bárki képes kezelni őket. Ehhez egyszerű eszközkészletre van szükség, és gondosan kövesse az útmutatóban írt összes ajánlást.

- Egy másik nagyon fontos előny az alacsony költség, mert csak a külső partíciók szerepelnek a tervezésben, ráadásul ön maga választja ki a vízvezetéket, amely lehetővé teszi, hogy pontosan megvásárolja azt a lehetőséget, amelyik tetszik.. Rendszerint az összes csomópont ára kétszer alacsonyabb, mint zárt rendszerű vásárlás esetén.
- Kívánt esetben a tálca nélkül is megtehető, így a beépített verzió egy zuhanycsaptelepel. Ez nemcsak lehetővé teszi, hogy megszabaduljon a küszöbértékektől a bejáratnál, hanem lehetővé teszi, hogy egy nagyon szokatlan és eredeti belső teret hozzon létre.

Zárt szerkezetek
Ennek a lehetőségnek a népszerűsége számos tényezőnek tudható be:
- A rendszer nem engedélyezi a falakon és a padlón a fröccsenést, az ajtók bezárása után biztosítja a rendszer tömítettségét.
- Számos olyan kiegészítő tulajdonsággal rendelkezik, amelyek lehetővé teszik a pihentető folyamatot, és ha kevesebb lehetőség van egy kis designban, akkor egy 150-80-as zuhanykabin hidromasszázzsal vagy akár pezsgőfürdővel is kedveskedhet.

- Továbbá az előnyök közé tartozik az a tény is, hogy egy hammam-gőz-török fürdővel is meg lehet vásárolni egy designt, amelyben egy kemény napi munka után pihenhet.
- A rendszerek nagyon gyorsan csatlakoznak és egyszerűen a legfontosabb az, hogy a kommunikációt a megfelelő helyre vezessék, és csatlakozzanak hozzájuk a fülke összeszerelése után.
- Ha időről időre felszívja a vizet, válassza a mély tálca beállításait.
Beágyazott rendszerek
Az ilyen típusú szerkezeteknek a következő előnyei vannak:
- A zuhanykabin alatt minden fülkét beállíthat, és 170-80-as tuskádat vagy bármilyen más konfigurációt kaphat a kívánságaitól függően, mivel nedvességálló gipszkartonból választhat.
- Ismételten, ha akarod, nem használhatod a raklapot, emelheted le a padlót, megszabadulhatok az emelkedésektől, ami nagyon fontos az idősek számára.
- A falak csempével vannak szembenézve, így megbízhatóan megvédhetik nedvességüket. A kerámiák élettartama nagyon nagy, így a design évtizedekig szolgál.
- Az egyetlen dolog, amire szükség van az ajtók behelyezése, lehet csúszni (ami jó a helyhiány miatt) vagy a csuklós ajtók. Mindegyik lehetőségnek megvannak a maga előnyei, így a választás a tiéd.
Tipp Nem szabad menteni a vízvezetékeket, jobb, ha drága zuhanyt vásárolna, hogy a lehető leghosszabb ideig szolgáljon.

következtetés
Egy adott lehetőség kiválasztása a tiéd, 80 cm széles terekbe illeszkedő termékeket tekinthetünk meg, természetesen a téglalap alakú konfigurációk sokkal tágasabbak és kényelmesebbek, de ha nincs helyük, egy négyzetbe juthat.
A jelen cikkben szereplő videó élénken megmutatja néhány fontos árnyalatot a tárgyalt témáról.