A mosdó alatt lévő padló: a gyártási folyamat
A fürdőszoba belsejének kialakítása érdekében a házak vagy apartmanok tulajdonosai megpróbálnak speciális anyagokat használni olyan termékek beszereléséhez, mint a mosogató vagy a kád. Ebben az esetben leggyakrabban olyan munkafelületeket kell létrehozni, amelyeken személyes higiéniai cikkeket és háztartási tárgyakat helyezhet el. Ezért a táblát általában a mosdókagyló alatt hozták létre a fürdőszobában a saját kezével, ha nincs ilyen jellegű probléma megoldására üzletépítés.

Gyártási folyamat
Először is, azt kell mondanunk, hogy egy ilyen műveletet nemcsak a szépség érdekében hajtanak végre, hanem a szerkezet jó megjelenését is. Emiatt a mester, arról beszél, hogyan lehet a padlót a mosdó alá a fürdőszobába felvenni, tanácsos megszerezni a legegyszerűbb mosogatószereket, mivel az állványok további elemei csak költségeket eredményeznek. Ezért nem szükséges ilyen Tulip típusú mosogatót vásárolni.

Anyagkiválasztás
Mindenekelőtt minden olyan elemnek, amelyet erre a munkára használnak, nagyon ellenállónak kell lennie a nedves környezetben és a vízzel való közvetlen érintkezésben. Ezért a legjobb, ha ugyanazokat az anyagokat használják, amelyek hozzásegítenek egy szekrény vagy keret létrehozásához, ami a konyhai mosogató a pulton alatt.

Általában műanyag paneleket, nedvességálló rétegelt lemezeket vagy teljesen laminált forgácslapokat használnak. Ha lemezeket vagy léceket használnak munkához, azokat egy speciális vegyszerrel kell kezelni a nedvesség elleni védelem érdekében. Azonban a szakemberek javasolják, hogy fémprofilokat és speciálisan erre a célra tervezett munkalapokat használjanak a keret létrehozásához, bár az áruk nagyon magas.
Tipp Néha sokkal könnyebb megvásárolni egy kész mosogatót egy asztallappal és egy állványon, mint magával hozni egy ilyen szerkezetet. Ez segít megszabadulni a tervezéssel és a későbbi gyártással kapcsolatos nehézségek tömegétől.

felszerelés
- Először is, tegye a mosogató alját a pulton alatt. Ugyanakkor létre kell hozni egy olyan keretet, amelyen az egész struktúrát támogatni fogják. Minden elemnek nemcsak szorosan kapcsolódnia kell egymáshoz, hanem a falra is rögzíteni.

Az is fontos, hogy olyan speciális hordozót készítsen, amely magától tartja a héjat. Ebben az esetben illesszen be egy fa táblát vagy rétegelt lemezt, amely a mosogató alakjára vágódik.
- Az előre megvásárolt anyagokat a munkalapok gyártásához úgy kell feldolgozni, hogy az a mosogatónak legyen helye. Ebben az esetben figyelembe kell venni a tervezési jellemzőket és a modellt. Ezenkívül attól is függ a termék merítésének szintje a szerkezetben.

- Meg kell jegyezni, hogy az ilyen szerkezetek független gyártásával egyszerűen lehetetlen elkerülni a mosogató és az asztallap felülete közötti rések kialakulását.. Ezért a szerelési kézikönyv azt javasolja, hogy nedvességálló tömítőanyagokat használjon az ilyen nyílások lezárására.

- Ha ilyen munkát végez, akkor nem szabad a felület létrehozására korlátozódnia.. Teljesen varrhatja az eredő eredeti szekrény alsó részét, vagy felszerelheti a csuklós ajtókat.
Tipp A szakemberek javasolják polcok vagy fiókos szekrények létrehozását a mosogató alá. Ez lehetővé teszi, hogy hatékonyan használja a szabad területet, és elrejtse az objektumok vagy dolgok megosztását.

Szakemberek ajánlása
- A fürdőszobában bármilyen formatervezést meg kell jegyezned, hogy ebben a szobában magas páratartalom és állandó hőmérsékletváltozás van. Ezért a munkához speciális anyagokat vagy eszközöket kell használni védelem céljából.

- Ha ilyen felületet hoz létre az autómosás megvásárlása után, ezt a tényt a vásárlás előtt is figyelembe kell venni. Olyan terméket kell felvennie, amelynek kialakítása lehetővé teszi a lyukba való behelyezését, ugyanakkor a szélén az oldalak segítségével is meg lehet tartani.
- A mosogató varrásánál érdemes gondoskodni arról, hogy kényelmesen hozzáférhessen a csövekhez és a csatornarendszerhez. Ez nagymértékben megkönnyíti a munkát a megelőző karbantartás vagy a szennyvíz tisztítása során. Egyes mesterek azonban úgy vélik, hogy e terület bezárása általában nem érdemli meg, és hogy jó megjelenést adjon, jobb, ha gyönyörű szifont kap.
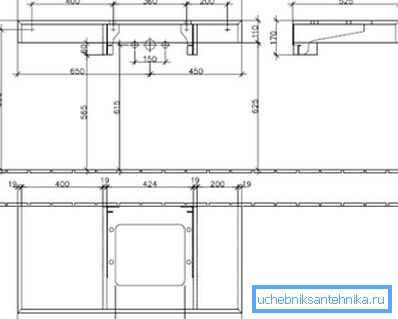
- Amikor egy jövőbeli termék rajzát hozza létre, figyelembe kell venni nemcsak a méreteit, hanem a helyiségben lévő arányukat is. Ezért érdemes továbbá létrehozni egy tervet a fürdőszobában lévő összes belső tárgy elhelyezésére, jelezve a méretet és a pontos méretet.

következtetés
Miután részletesen tanulmányozta a jelen cikk videót, többet megtudhat az ilyen struktúrák gyártási folyamatáról. Figyelembe véve a fenti cikket is, arra kell következtetni, hogy a gyártási folyamat a legtöbb esetben a mosás modelljétől függ.
Ezért ezt a szempontot a megszerzés előtt meg kell vizsgálni a tervezési szakaszban.